File:1918-loc-0046-long-lake-dam-haer-wa-33-a-15-photo-169118pu-1600.jpg
Jump to navigation
Jump to search
Size of this preview: 752 × 600 pixels. Other resolution: 1,128 × 900 pixels.
Original file (1,128 × 900 pixels, file size: 226 KB, MIME type: image/jpeg)
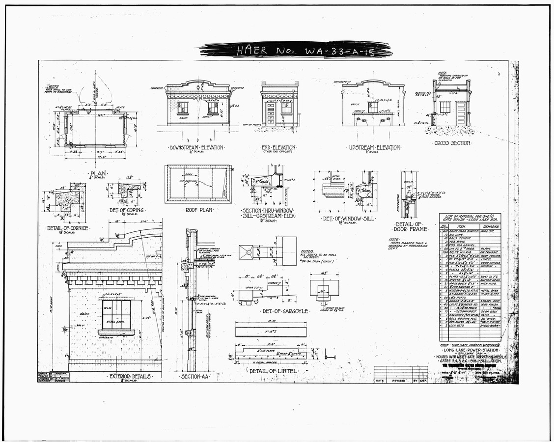
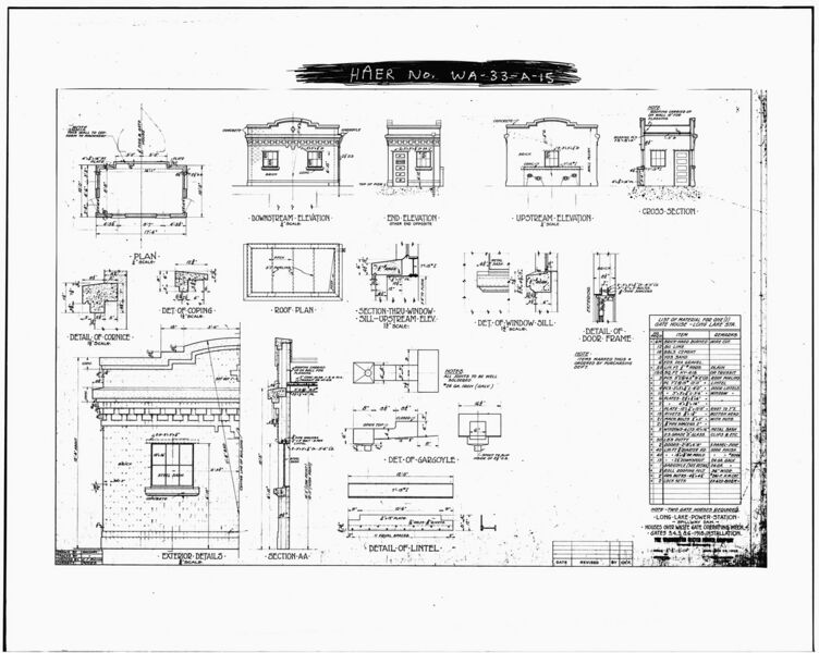
photo referenced by [1]. This was part of the historical American engineering record WA-33-A for Long Lake dam. Plans of the 1918 installation of operating houses 2 and 3 for control gates 3, 4, 5, and 6. This is a photocopy of drawings, courtesy of the Washington Water Power Company, Spokane, Washington.
File history
Click on a date/time to view the file as it appeared at that time.
| Date/Time | Thumbnail | Dimensions | User | Comment | |
|---|---|---|---|---|---|
| current | 17:22, 6 September 2023 | 1,128 × 900 (226 KB) | Kirk (talk | contribs) | initial upload |
You cannot overwrite this file.
File usage
The following page uses this file: